
🏠 Vollvermietete Kapitalanlage in der Innenstadt von Essen
2 Mehrfamilienhäuser mit Gewerbe-Zwischentrakt und 11 Garagen | Uni-Nähe | Brutto-Rendite 6,3 %
💡 Kurzfakten auf einen Blick
| Kategorie | Angabe |
|---|---|
| Objektart | 2 Mehrfamilienhäuser (3½- und 4½-geschossig) mit Garagenhof und Zwischentrakt (Gewerbe/Lager) |
| Grundstücksfläche | ca. 1.004 m² |
| Wohnfläche gesamt | ca. 1.140 m² (21 Wohneinheiten) |
| Nutzfläche gesamt | ca. 1.683 m² |
| Zwischentrakt (Gewerbe/Lager) | ca. 81 m² |
| Garagenfläche (11 Garagen) | ca. 174 m² |
| Kellerfläche | ca. 230 m² (vollunterkellert) |
| Baujahr / Modernisierung | ca. 1965 / Teilsanierung ab 2000 / Wohnungen fortlaufend modernisiert |
| Zustand | gepflegt |
| Baulasten | keine |
| Energieverbrauch (Verbrauchsausweis) | 116,6 kWh/(m²·a) |
| Heizungsart | Fernwärme |
| IST-Jahresnettokaltmiete | 117.124 € (vollvermietet) |
| Jahresvervielfältiger (IST-Miete) | 15,7-fach |
| Nettomietpreis/m² Wohnfläche | 7,80 €/m² |
| Kaufpreis | 1.850.000,00 € |
| Maklercourtage | 4,76 % inkl. MwSt. (zahlbar vom Käufer) |
🏗️ Objektbeschreibung
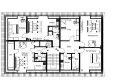
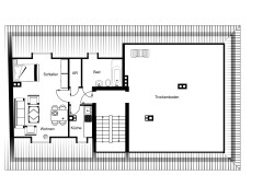
Das gepflegte Ensemble besteht aus zwei vollunterkellerten Mehrfamilienhäusern mit insgesamt 21 Wohneinheiten, einem genehmigten Gewerbe-Zwischentrakt sowie einem asphaltierten Garagenhof mit 11 Stellplätzen.
Die Gebäude wurden 1965 errichtet und seit 2000 kontinuierlich modernisiert. Zu den Verbesserungen zählen unter anderem:
- Kunststofffenster mit Isolierverglasung
- Fassadendämmung (6 cm Styropor + Kunststoffputz)
- Gedämmte Kellerdecken
- Moderne Bäder in etwa 90 % der Wohnungen
- Neue Türsprechanlagen
- Gepflegte Außenanlagen
Die Beheizung erfolgt effizient und wartungsarm über Fernwärme. Der Architekt des Ensembles ist zugleich Eigentümer und ein engagierter Hausmeister sorgt für die kontinuierliche Betreuung. Leerstände gab es bislang keine.
🧰 Ausstattung im Überblick
- Zwei massiv gebaute Mehrfamilienhäuser (3½- & 4½-geschossig)
- Vollunterkellert mit Betonstreifenfundament und Stahlarmierung
- 21 Wohneinheiten mit zeitgemäßen Grundrissen
- Gewerbeeinheit (ehem. Trinkhalle), aktuell als Lager vermietet
- Kunststofffenster mit Doppelverglasung
- Außenfassade wärmegedämmt
- Gepflegte Balkone mit Süd- oder Westausrichtung
- 9 Einzelgaragen und eine Doppelgarage
- Hausmeisterservice und laufende Instandhaltung
📍 Lagebeschreibung
Die Immobilie liegt im begehrten Essen-Nordviertel, unweit der Universität Duisburg-Essen und der Innenstadt. Die ruhige Anwohnerstraße ohne Durchgangsverkehr und die Nachbarschaft mit modernisierten Häusern schaffen eine attraktive Wohnlage.
Infrastruktur & Umgebung:
- Bus- und U-Bahnanschluss in direkter Nähe
- Grundschule und Gymnasium fußläufig erreichbar
- Innenstadt und Universität ca. 10 Gehminuten entfernt
- Öffentliche Parkplätze und Grünanlagen vor dem Haus
Das Nordviertel entwickelt sich positiv mit nachhaltigem Wertsteigerungspotenzial und stabiler Mieterstruktur.
💶 Wirtschaftliche Daten
- Jahresnettokaltmiete: 117.124 €
- Kaufpreis: 1.850.000 €
- Faktor (IST-Miete): 15,7-fach
- Brutto-Rendite: ca. 6,37 % p. a.
- Energieverbrauch: 116,6 kWh/(m² · a)
- Heizungsart: Fernwärme
- Zustand: gepflegt, kein Sanierungsstau
Ein solides Bestandsobjekt mit sofortiger Rendite und hervorragender Zukunftsperspektive.
🧾 Sonstiges
Die Immobilie ist vollständig vermietet. Eigentümer und Hausmeister kümmern sich persönlich um Instandhaltung und Mieterkommunikation. Es sind keine Baumängel bekannt.
Weitere Informationen:
Für Fragen oder Beratung erreichen Sie uns per Mail: blume@first-real-estate-partner.de oder telefonisch unter +49 177 79 203 39.
Das Objekt ist ebenfalls auf Immobilienscout24.de gelistet.
Wichtig:
- Die Käufercourtage beträgt 4,76 % inkl. MwSt. und ist mit Zustandekommen des Kaufvertrags fällig.
- Die vermittelnden Blume Hulsman GbR / First Real Estate Partner erhalten einen unmittelbaren Zahlungsanspruch gegenüber dem Käufer (Vertrag zugunsten Dritter, § 328 BGB).
- Irrtum und Zwischenverkauf vorbehalten.
- Alle Angaben basieren auf Informationen des Auftraggebers, ohne Gewähr für Vollständigkeit und Aktualität.
- Es gelten unsere Allgemeinen Geschäftsbedingungen und Datenschutzrichtlinien.
Besuchen Sie First Real Estate Partner auch auf Immobilienscout24.de
📈 Eigene Rendite berechnen
Geben Sie Ihre Werte ein und berechnen Sie die Bruttorendite:
📈 Erweiterte Renditeberechnung inkl. Nebenkosten
Berechnen Sie Ihre Bruttorendite unter Berücksichtigung aller Kaufnebenkosten.











First Real Estate Partner [Britta Hulsman und Sylvia Blume (GbR) · Firmensitz: Deutschland], verarbeitet zum Betrieb dieser Website personenbezogene Daten nur im technisch unbedingt notwendigen Umfang. Alle Details dazu finden Sie in der